网站首页
|
联系我们
|
留言反馈
网站首页
关于旭通
产品展示
公司新闻
行业聚焦
工程案例
最新供应
联系我们
<
>
桥梁伸缩缝系列
C、E、F、Z型伸缩缝
TST型桥梁伸缩缝
160型伸缩缝
单、多组型伸缩缝
板式型伸缩缝
梳齿型伸缩缝
毛勒型伸缩缝
公路桥梁型钢伸缩装置
模数式桥梁伸缩缝
组合式伸缩缝
XF系列伸缩缝
异形钢单链式伸缩缝
浅埋式伸缩缝
桥梁伸缩缝安装
充气芯模系列
八角形充气芯模
矩形充气芯模
椭圆形充气芯模
橡胶气囊
其它型号充气芯模
箱梁橡胶气囊内模
桥梁橡胶气囊内模
预应力混凝土气囊/胶囊
管道封堵充气气囊
边沟/排水沟橡胶气囊
桥梁气囊内模
箱梁空心板气囊
公路桥梁预制板橡胶气囊
隧道充气芯模
桥梁板芯模
预制空心板充气气囊
六边形充气芯模
异形充气芯模
梯形充气芯模
桥梁空心板充气芯模
堵水气囊
橡胶支座系列
板式橡胶支座
盆式橡胶支座
铁路板式橡胶支座
四氟板式橡胶支座
圆板式橡胶支座
公路板式橡胶支座
圆形球冠型橡胶支座
四氟滑板橡胶支座
矩形橡胶支座
坡形橡胶支座
高阻尼橡胶支座
铅芯隔震支座
钢结构网架支座
更换橡胶支座
路桥防水施工工程
桥梁护栏支架系列
橡胶止水带系列
桥梁配件产品系列
聚乙烯闭孔泡沫板系列
土工材料产品
玻璃钢产品系列
路桥施工
止水产品
其它产品
联系人:孙经理
电 话:0318-2153897
销售热线:13603189763
咨询热线:15932433336
公司邮箱:hssonghao@126.com
业务邮箱:757686268@qq.com
Q Q:757686268
地 址:河北省衡水市桃城区衡湖开发区
网 址:www.songhaocn.com
详细新闻
当前位置:
首页
>
新闻中心
>
工程案例
> 详细新闻
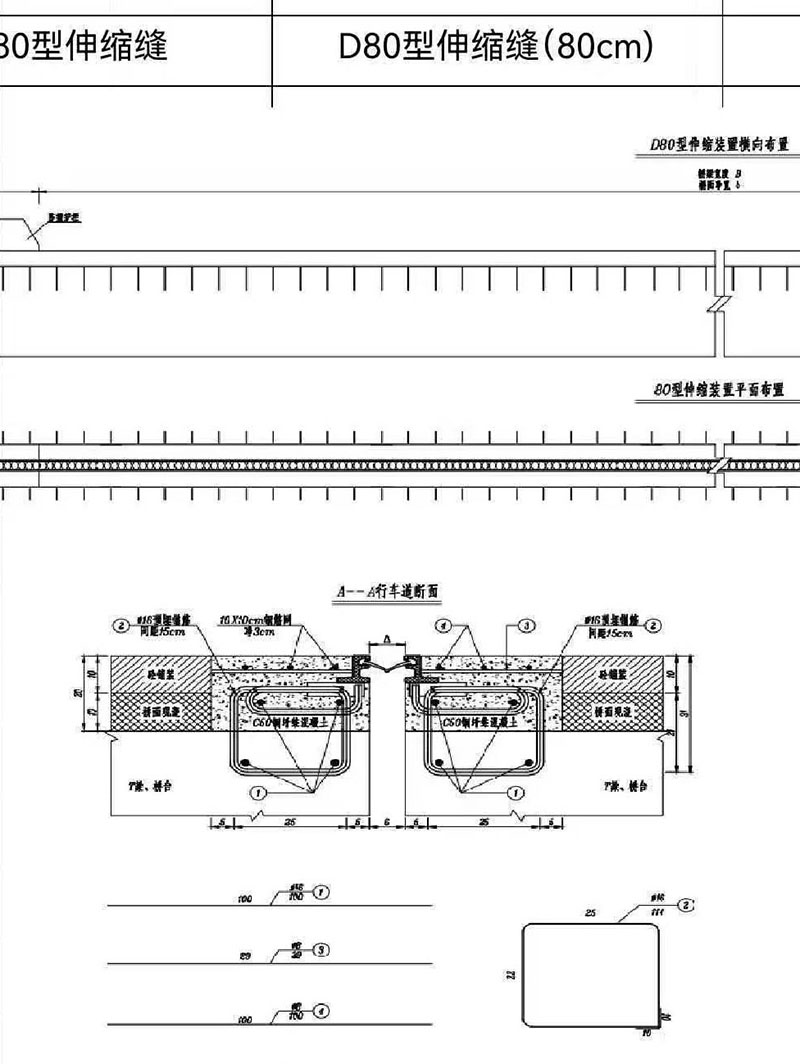
四川乐山道路连接线
作者:
桥梁伸缩缝
来源:
www.songhaocn.com
发表时间:2026-4-10
百度一下
产品名称:
桥梁伸缩缝
城市名称:四川乐山
施工名称:道路连接线
分享此文章:
上一篇:
紫铜止水带
下一篇:
黑龙江省灌溉区骨干工程
衡水旭通工程橡胶有限公司 电话:0318-2153897 手机:13603189763 15932433336
地址:河北省衡水市桃城区衡湖开发区 www.songhaocn.com E-mail:hssonghao126.com 技术支持:
起航网络
冀ICP备17012681号-5
网站地图XML
html
RSS订阅
友情链接:
包塑丝
|
铸铁闸门
|
支座更换
|
护栏支架
|
充气芯模
|
钢结构支座
|
消防排烟风机